餐边柜定义:在餐桌边或旁边的空间设计一个具有收纳功能和美感的储物柜。餐边柜一般用于摆放不常用的餐具、酒瓶器具、功能更多的餐边柜还会增加直饮水机、咖啡机、小型制冰机等功能,现在的餐边柜都是兼顾装饰柜、酒柜、储物柜为一体的柜子。
特点:在增加实用功能的同时,为整体用餐空间提高美观度的装饰效果。
下面由华建工艺学会、华建环境设计研究所为设计师们讲解下餐边柜合理设计及相关的注意事项,跟着华建学设计。
▷目录
1、餐边柜尺寸指引
2、餐边柜常用设计图
3、高级感餐边柜设计注意事项
4、餐边柜实景图参考
1、餐边柜尺寸指引
餐边柜的主要功能为储物设计。
餐边柜常见的电器设备及存放物品:
深度300mm餐边柜功能直饮水机、烧水壶、咖啡机、微波炉、日常饮用水杯子、酒水器具、茶叶咖啡、医用药品、卫生纸存储、零食干货、不常用碗筷、工具、杂物收纳、扫拖地机器人。
深度600mm的餐边柜还可设置冰箱、清洗盘、立柜等厨房设备。
柜子层板最好做活动板,可以调节高度,方便换季或者后期大物件物品存放。
餐边柜尺寸设计:
餐边柜深度:300~600mm.
单纯的储物功能建议:300~350mm;
需要购置咖啡机或饮水机,则需要根据电器尺寸提前规划好餐边柜深度,建议400~450mm;
需要放置嵌入式烤箱、微波炉或冰箱,建议600mm;
餐边柜台面离地高度:950~1000mm;
餐边柜中间层镂空高度:600~650mm;
餐边柜单柜门宽度:普通柜门宽400-500;
轨道插座离台面高度:300~400mm。

△餐边柜常见的储物设计

△餐边柜常见的储物设计

△餐边柜尺寸设计
2、餐边柜常用设计图
餐边柜布局类型有:操作式餐边柜、储藏式餐边柜、展示式餐边。
--(一)操作式餐边柜 --
操作式餐边柜设计,是以中间层操作台为主+强收纳。可以满足多种小电器摆放的需求。


△操作式餐边柜(一)

△操作式餐边柜(二)
--(二)嵌入式餐边柜 --
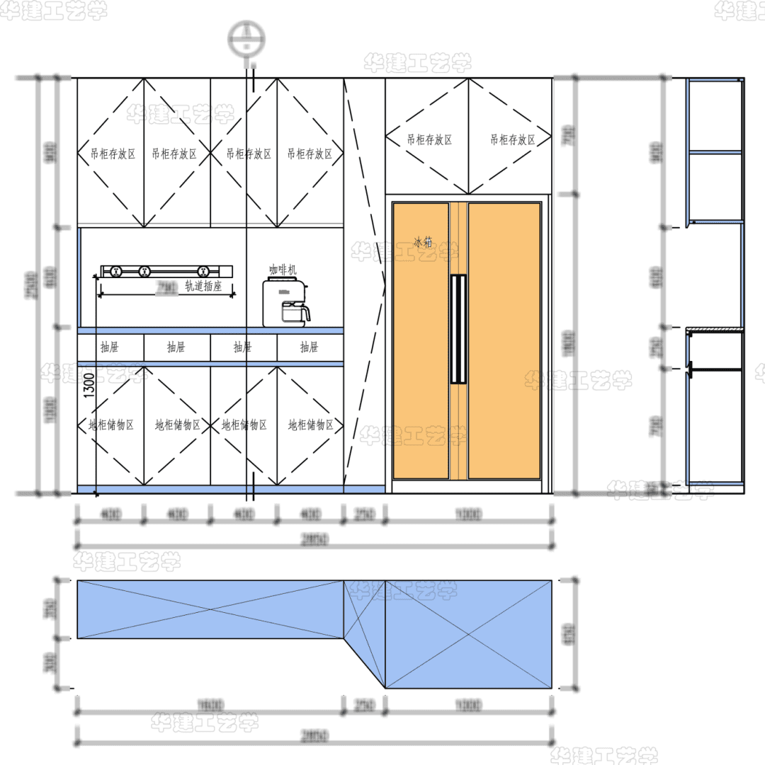
嵌入式餐边柜设计,是将电器嵌入餐边柜内的一体化设计,常见的嵌入式冰箱,嵌入式微波炉等,满足电器存放需求。


△嵌入式餐边柜(一)

△嵌入式餐边柜(二)
--(三)展示式餐边柜 --
展示式餐边柜设计,是指预留更多的位置进行展示装饰。


△展示式餐边柜(一)

△展示式餐边柜(二)
3、高级感餐边柜设计注意事项
高级感餐边柜设计细节:
1、做无拉手设计,不做明拉手;
2、做同色封边,不做异色封边;
3、做有背板,不做无背板;
4、做同色见光板,不做异色见光板;
5、不装普通插座,装轨道插座;
6、开放格退后处理,层次分明更好看;
7、下层高度比上层高度高,避免头重脚轻;
8、预留灯带,更高级。
9、不预留顶线与踢脚线更简约。

△做无拉手设计,不做明拉手

△做同色封边,不做异色封边

△做有背板,不做无背板

△做同色见光板,不做异色见光板

△不装普通插座,装轨道插座

△开放格退后处理,层次分明更好看

△下层高度比上层高度高,避免头重脚轻
4、餐边柜实景图参考




评论0