PDF2024年房建工程质量通病汇编黑皮书高清无水印PDF版下载
文件简介
【文件页数】275P 【文件格式】PDF
【文件名称】2024年房建工程质量通病汇编黑皮书 【文件大小】45.5M
【适用范围】
【文件简介】
部分内容预览
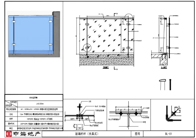
DWG某知名地产公司栏杆标准图集做法CAD格式方便编辑
文件简介
【文件页数】15例 【文件格式】dwg
【文件名称】 某知名地产公司栏杆标准图集做法CAD
【文件大小】 18.9M
【文件简介】
拿来即用 包括:
玻璃栏杆(夹具式...
某大型小区项目二次结构植筋专项施工方案docx格式下载
文件简介
【文件页数】20P 【文件格式】docx
【文件名称】 某大型小区项目二次结构植筋专项施工方案 【文件号】
【发布日期】 【实施日期】
【适用范围】...
docx某高层住宅项目地暖混凝土保护层施工技术交底word可编辑版免费下载
文件简介
【文件页数】5P 【文件格式】PDF
【文件名称】 某高层住宅项目地暖混凝土保护层施工技术交底 【标准号】
【发布日期】 【实施日期】
【适用范围...
“混凝土结构加固(碳纤维)” 施工工艺全面剖析,一看就懂。
一、概述
1.1、适用范围:
碳纤维加固法可用于混凝土结构抗弯、抗剪加固,同时广泛用于各类工业与民用建筑物、构造物的防震、防裂、防腐的补强。适用于各种结构类型、各种结构部位的加...
外保温墙常见四大问题原因分析:脱落/开裂/结露/空鼓
据了解,外墙保温层出现墙面问题的时间,一般会在施工完毕后一段时间,或经冬夏气温循环变化后出现,其隐藏的质量或施工问题引发了这些问题。一般来说会出现四大问题。
01 外墙保温层脱落
...
PDF试验检测项目参数取样要求一览表pdf高清免费分享
文件简介
文件名称:试验检测项目参数取样要求一览表
文件格式:PDF
文件页数:15P
文件大小:2.65M
总结了常用的建筑材料送检取样标准、必检试验项目和试验依据标准。
部分内...
docx住宅楼内墙保温层抹灰技术交底 (附Word可编辑格式下载)
一、 施工准备
(一) 作业条件
1、 抹灰部位的主体结构分部工程均经过有关单位(如建设、设计、监理、施工单位等共同验收,并签认)。门窗框及需要预埋的管线已安装完毕,并经检查验收合...
docx盘扣式落地脚手架方案doc格式免费下载
盘扣式落地脚手架方案
目 录
第一章 编制依据
第二章 工程概况
第二节.脚手架工程概况
第三章 施工准备
第一节.技术准备
第二节.人员准备
第三节.材料准备
第四节.现场准备
第四...


